18912364229 English En

导航 关闭

解决方案
一家致力于建/构筑物用一体化智慧能源站系列产品的研发、、、、设计、、生产、、、检测、、、安装及售后服务的高科技企业。。。。
关键词:
中广核元江塘房项目
工业生产 发布时间:2024年06月24日 来源: 浏览量:1003次

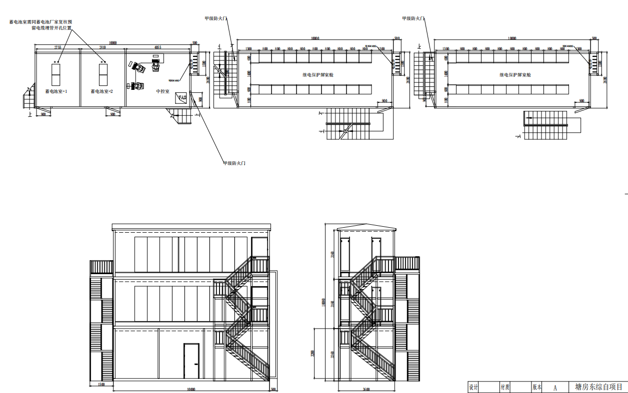
1、、项目概况

项目地位于云南元江,,,,集成电力方舱项目,,箱体尺寸为:

10500*3600*10800mm  1套

2、、、、系统介绍

项目由中控室及蓄电池室1套尺寸为10m×3.9m×3.2m和二次舱2套尺寸为10m×3.9m×3.2m,,爬梯及辅控系统组成

扫码关注手机站

Copyright © 2024 无锡AG尊龙科技有限公司 All Rights Reserved.

站点地图